Baugrundstück mit Baugenehmigung in schöner Wohnlage

€ 298.000


65345 Eltville am Rhein, Wohngrundstück zum Kauf
Objektnr: 1-4050
 

Objektbeschreibung


Baugrundstück mit Baugenehmigung
in schöner Wohnlage von Eltville-Rauenthal

Im Überblick:
- ideal für ein modernes Doppelhaus oder ein Einfamilienhaus
- Baugenehmigung liegt bereits vor
- Provisionsfrei
- schnelle Anbindung ins komplette Rhein-Mainz-Gebiet
- in schöner Lage teilweise mit Fernblick

Grundstück:
ca. 370 m²

Bebauung:
nach §34 BauGB Nachbarschaftsbebauung
Baugenehmigung für ein Doppelhaus liegt bereits vor

Planungsvorschlag:
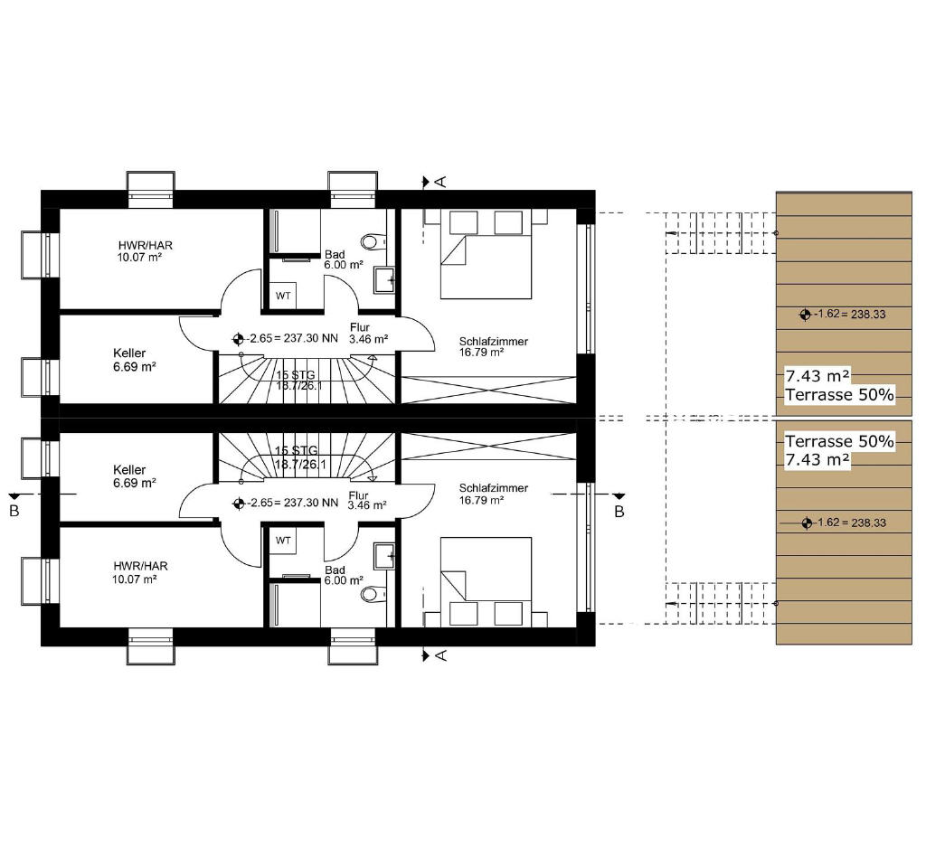
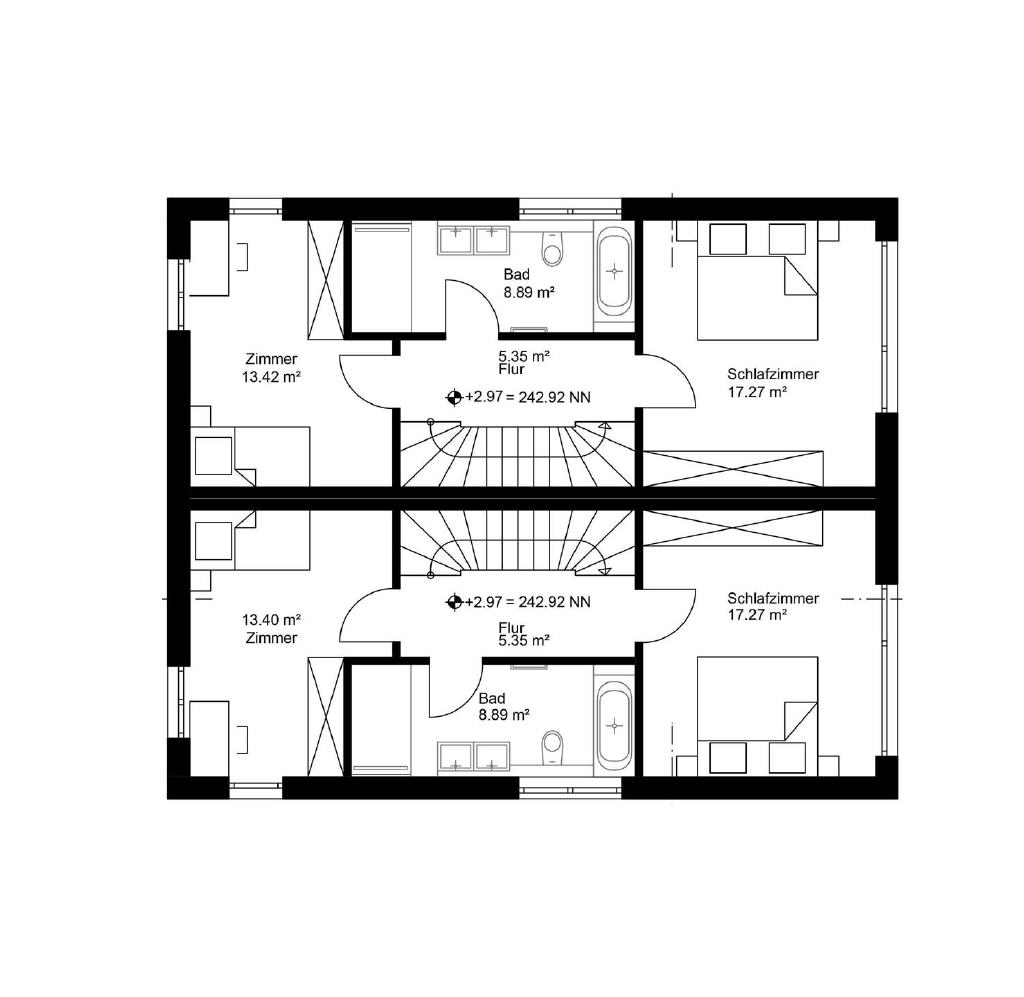
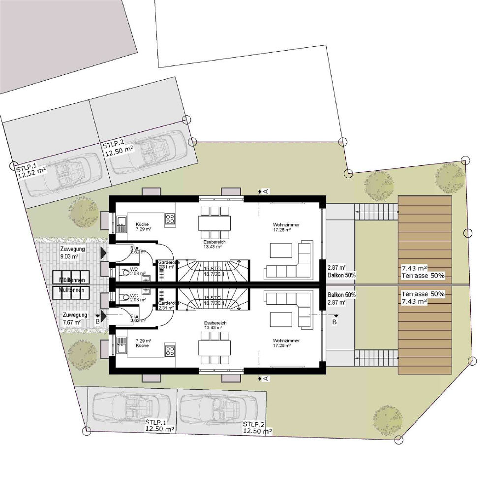
großes Doppelhaus mit jeweils ca. 125 m² Wohnfläche
weitere Details gerne auf Anfrage

Stellplätze:
jeweils 2 Außenstellplätze möglich

Lage:
in zentraler, dennoch ruhiger Wohnlage - durch Naturnaher Umgebung tolle
Spazier- und Wandermöglichkeiten und schnelle Anbindung ins Rhein-Main-Gebiet

Gesamtkaufpreis:
Optional: Grundstück mit ca. 185 m²

Für die Zusendung eines Exposés benötigen wir Ihre vollständige Anschrift mit Telefon- Nr. Bitte füllen Sie freundlicherweise das Kontakt-Formular aus.

*** Sie möchten Ihr Haus in gute Hände geben? Wir haben sicherlich auch für Ihre Immobilie den passenden Käufer. Sprechen Sie uns unverbindlich an. Wir beraten Sie gerne

Objektangaben


Objekttypen
Grundstück, Wohngrundstück
Nutzungsart
Wohnen
Grund­stücks­fläche
370 m²
Zimmeranzahl
0,0
Käufer­provision
Keine Käuferprovision
Kaufpreis
€ 298.000

Energieausweis


Lage


Ansprechpartner


Gruppenfoto Mills Immobilien Team

Team | Allgemeine Anfrage

Immobilienteam

Telefon Rheingau: (06123) 70530

Telefon Mainz: (06131) 144 8881

E-Mail

Anfrageformular


* Pflichtangaben
 SSL-verschlüsselt