Freistehendes Einfamilienhaus mit Terrasse auf großem Grundstück

€ 598.000


55291 Saulheim, Einfamilienhaus zum Kauf
Objektnr: 0-3954
 

Objektbeschreibung


Saulheim:
Freistehendes Einfamilienhaus mit Terrasse auf großem Grundstück

Im Überblick:
- 5 große Zimmer, Küche, TL-Bad und Gäste-WC
- zzgl. 2 Zimmer im UG in Wohnraumqualität
- überdachte und kaum einsehbare Terrasse und schöner Garten
- sehr gepflegter Allgemeinzustand
- top Grundrissgestaltung und geeignet für jedes Alter
- schöne und ansprechende Feldrandlage

Wohnfläche:
ca. 145 m² inkl. ca. 30 m² in Wohnraumqualität im UG

Grundstück:
ca. 992 m²

Erdgeschoss:
schönes und helles Wohnzimmer mit Zugang zur Terrasse, Esszimmer, Küche,
3 Schlafzimmer, Gäste-WC, Diele und Tageslicht-Bad mit Wanne und Dusche

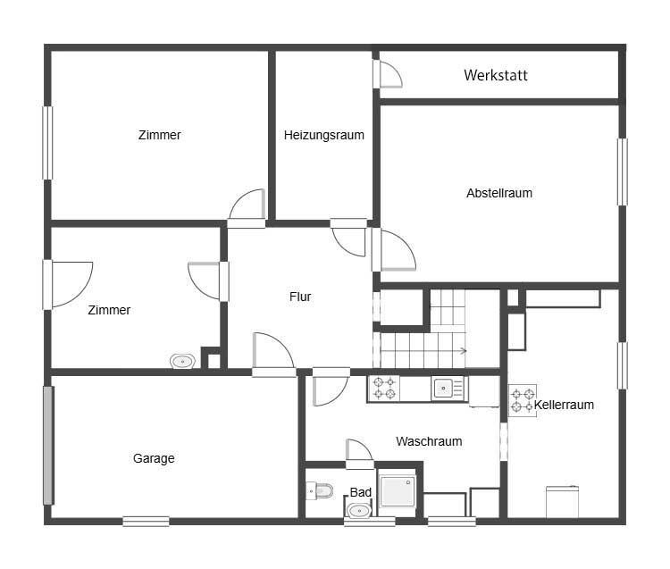
Untergeschoss:
Schlafzimmer und Wohnküche in Wohnraumqualität, kleines Bad mit Dusche, Waschküche, Heizungsraum,
Werkstatt, 2 Abstellräume und Zugang zur Garage

Dachgeschoss:
großer und ausbaubarer Speicher

Baujahr:
ca. 1967 Massivbauweise

Zustand:
sehr gepflegter Allgemeinzustand mit geringem Aufwand direkt bezugsbereit
ca. 2017 EG umfangreich renoviert

Grundstück:
heller und liebevoll angelegter Garten mit Bewässerungsanlage (voll elektrisch an einen Brunnen
angeschlossen), Grundstück ist über zwei Seiten zugänglich

Heizung:
Öl-Zentralheizung aus 1985 Gasanschluss vorhanden

Fenster:
doppeltverglaste Kunststofffenster überwiegend aus 2007 und 2008

Energieausweis:
lag zum Zeitpunkt der Anzeigenerstellung noch nicht vor

Lage:
in ruhiger Wohnlage direkt am Feldrand, alle Dinge des täglichen Bedarfs vor Ort
Bahnhof Saulheim gut erreichbar, Ärzte, Spielplätze und Einkaufmöglichkeiten in
der Nähe, Grundschule und weiterführende Schulen in Nieder-Olm und Wörrstadt, kurze Wege zur A63 und
schnelle Anbindung nach Nieder-Olm, Fahrzeit nach Mainz ca. 15 Minuten

Stellplatz:
große Garage und 2 Stellplätze

Freistellung:
Freistellung bereits erfolgt, Übergabe flexibel möglich

*** Sie möchten Ihr Haus in gute Hände geben? Wir haben sicherlich auch für Ihre Immobilie den passenden Käufer. Sprechen Sie uns unverbindlich an. Wir beraten Sie gerne

Für die Zusendung eines Exposés benötigen wir Ihre vollständige Anschrift mit Telefon- Nr. Bitte füllen Sie freundlicherweise das Kontakt-Formular aus.

Ausstattung


  • Außenstellplatz
  • Garage
  • Terrasse
  • Freiplatz (2 Stellplätze)

Objektangaben


Objekttypen
Einfamilienhaus, Haus
Nutzungsart
Wohnen
Wohnfläche ca.
145 m²
Grund­stücks­fläche
992 m²
Baujahr
1967
Zimmeranzahl
5
Käufer­provision
3,570 % inkl. MwSt.
Kaufpreis
€ 598.000

Energieausweis


nicht vorhanden

Lage


Ansprechpartner


Mills Immobilien Foto Team

Team | Allgemeine Anfrage

Immobilienteam

Telefon Rheingau: (06123) 70530

Telefon Mainz: (06131) 144 8881

E-Mail

Anfrageformular


* Pflichtangaben
 SSL-verschlüsselt