Nur noch 2 Häuser verfügbar! **Exklusive, freistehende Einfamilienhäuser**

€ 738.000


65399 Kiedrich, Einfamilienhaus zum Kauf
Objektnr: 0-3704
 

Objektbeschreibung


Neubau-Erstbezug in Kiedrich
Hochwertiges, freistehendes Einfamilienhaus in 1-A Wohnlage

Im Überblick:
- massiv gebautes Haus mit Keller
- mit Carport-Stellplatz und Stellplatz davor
- Top-Lage - Ruhig, dennoch super zentral
- Bezugsfertig
- Provisionsfrei

Aufteilung:
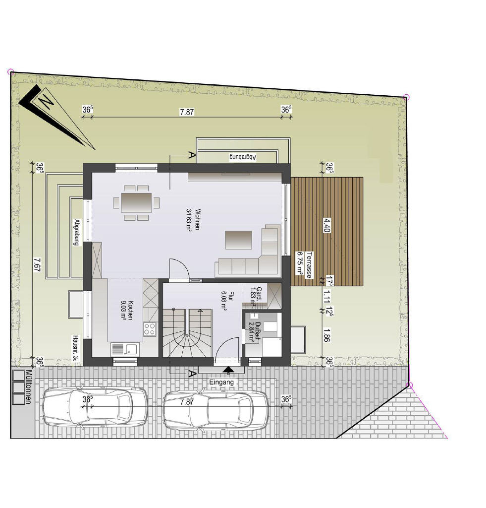
6-7 große Zimmer, offene Küche, moderne Badezimmer, Dusch-Bad, sonnige Terrasse, 3 Kellerräume (eins davon als Wohnraum nutzbar) und Speicher mit weiterem Stauraum

Wohnfläche:
ca. 137 m² + ca. 15 m² Ausbaureserve im Untergeschoss

Grundstücksgröße:
ca. 268 m²

Ausstattung:
- Schlafzimmer und Wohnzimmer mit Echtholz-Parkett
- Küchenbereich, Bäder und Flure mit hochwertigen Fliesen im modernen 60*60 cm Format
- Edle Badezimmer-Objekte und zeitlose Marken-Armaturen
- Fußbodenheizung in allen Wohnräumen
- Zusätzlicher Handtuchheizkörper im Bad
- Zimmertüren überhoch ca. 2,11 m

Bauausführung und Wärmeschutz:
Hochwertige Rohbauausführung mit wasserundurchlässigem Keller

Sämtliche Wände wurden massiv, Stein auf Stein errichtet.

Dreifachverglaste Fenster nach neuestem technischen Stand mit langlebigen,
elektrisch steuerbaren Alu-Rollläden.

Energieeffiziente Luft-Wärmepumpe;
Durch die energieeffiziente Luft-Wärmepumpe nutzen Sie die Umgebungsluft zum Heizen und sind
unabhängig von fossilen Brennstoffen und somit auch kostengünstig und umweltfreundlich

Lage:
In einer ruhigen und schönen Wohnlage, in Laufnähe zu allen wichtigen Dingen des täglichen Bedarfs,
ist unser Bauprojekt entstanden.

Diese 1-A-Wohnlage zeichnet sich durch die gewachsene aber aufgelockerte Struktur und
Nachbarschaft, sowie die hervorragende Anbindung im Rhein-Main-Gebiet aus.

Energieausweis:
Endenergiebedarf 26,4 kWh/(m²*a)
Effizienzklasse A+

Kaufpreis: zzgl. 2 Stellplätze im Carport hintereinander (Preis VHB) 

Gerne können Sie sich mit den 360°- Rundgängen einen besseren Eindruck über die Häuser verschaffen:
https://app.immoviewer.com/portal/tour/3086794?accessKey=6660

Hinweis:
Das Nachbarhaus Nr. 3 steht ebenfalls zum Verkauf. Bei Interesse können Sie sich das gerne unter dem folgenden Link anschauen: https://www.immobilienscout24.de/expose/161890994#/

Ausstattung


  • Außenstellplatz
  • Carport
  • Gäste-WC
  • Neubau
  • Separates WC
  • Terrasse
  • Freiplatz (2 Stellplätze)

Objektangaben


Objekttypen
Einfamilienhaus, Haus
Nutzungsart
Wohnen
Wohnfläche ca.
137 m²
Grund­stücks­fläche
268 m²
Zimmeranzahl
6
Käufer­provision
Keine Käuferprovision
Kaufpreis
€ 738.000

Energieausweis


Energieausweistyp
Bedarfs­ausweis
Gebäudeart
Wohngebäude
Endenergie­bedarf
26,40 kWh/(m²·a)
Energie­effizienz­klasse
A+

Lage


Ansprechpartner


Mills Immobilien Foto Team

Team | Allgemeine Anfrage

Immobilienteam

Telefon Rheingau: (06123) 70530

Telefon Mainz: (06131) 144 8881

E-Mail

Anfrageformular


* Pflichtangaben
 SSL-verschlüsselt